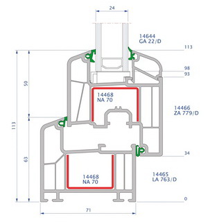
PVC stolarija - presek
PVC stolarija - presek

Podprozorske daske i okapnice – Estetika i zaštita za vaše prozore

Podprozorske daske i okapnice nisu samo funkcionalni elementi prozora, već doprinose i estetskom izgledu fasade. Naša ponuda uključuje visokokvalitetne aluminijumske okapnice i podprozorske daske koje osiguravaju dugotrajnost i otpornost na spoljne uticaje.

Okapnice – Precizno sečene po meri

Nudimo aluminijumske okapnice vrhunskog kvaliteta, dostupne u različitim dimenzijama. Sečemo ih po meri, kako bi savršeno odgovarale vašim potrebama. Na raspolaganju su dubine:

  • od 110mm
  • do 300mm

Okapnice štite fasadu i zidove od vode, sprečavajući vlagu i oštećenja uzrokovana vremenskim uslovima.

Podprozorske daske – Praktičnost i estetika

Podprozorske daske su važan deo enterijera i eksterijera prozora. One ne samo da daju elegantan završni izgled, već pružaju i dodatnu zaštitu od vlage. U ponudi imamo daske u sledećim dimenzijama:

  • 150mm
  • 200mm
  • 250mm
  • 300mm

Dostupne u različitim bojama i dezenima, podprozorske daske se lako uklapaju u svaki stil enterijera.

Kontaktirajte nas i pronađite savršeno rešenje za vaše prozore!


Ponuda za Vas

Dopada Vam se naša izrada PVC stolarije? Želite da u svom objektu imate kvalitetan i dugotrajan proizvod? Pošaljite nam Vaše ideje, a mi ćemo Vas kontaktirati sa najpovoljnijom ponudom za Vas.

Zatražite ponudu
Garancija kvaliteta

Uz kvalitetnu izradu i montažu, stolarija Stanišić nudi garanciju kvaliteta od čak deset godina!

Pozovite nas 069 711 777
Pozovite odmah 069 711 777